Обяви За нас Контакти
Продава 2-СТАЕН
град Пловдив, Южен
89 900 €
175 829.12 лв.

(1 284 €, 2 511.29 лв./m2)
Цената е с включено ДДС
Коригирана в 14:41 на 16 юни, 2025 год.
Обявата е посетена 2265 пъти.
Площ:
70 m2
Етаж:
3-ти от 6
Газ:
НЕ
ТEЦ:
НЕ
Строителство:
Тухла, Ще бъде въведен в експлоатация 2026 г.

Описание на имота:


За повече информация обадете ни се на тел: 0882 817 466 или 032 586 956 и цитирайте референтния номер на имота: Plv 87043.

Отговорен брокер: Стефан Моллов

Двустаен апартамент, съчетаващ простор, комфорт и спокойствие, с балансиран и практичен дизайн, който можете да персонализирате според вашите нужди, така че да се чувствате максимално добре в мечтания си дом. Имотът се намира в предпочитания за живеене квартал Южен, в близост до удобен градски транспорт, детски градини, училища, болници, аптеки, супермаркет.

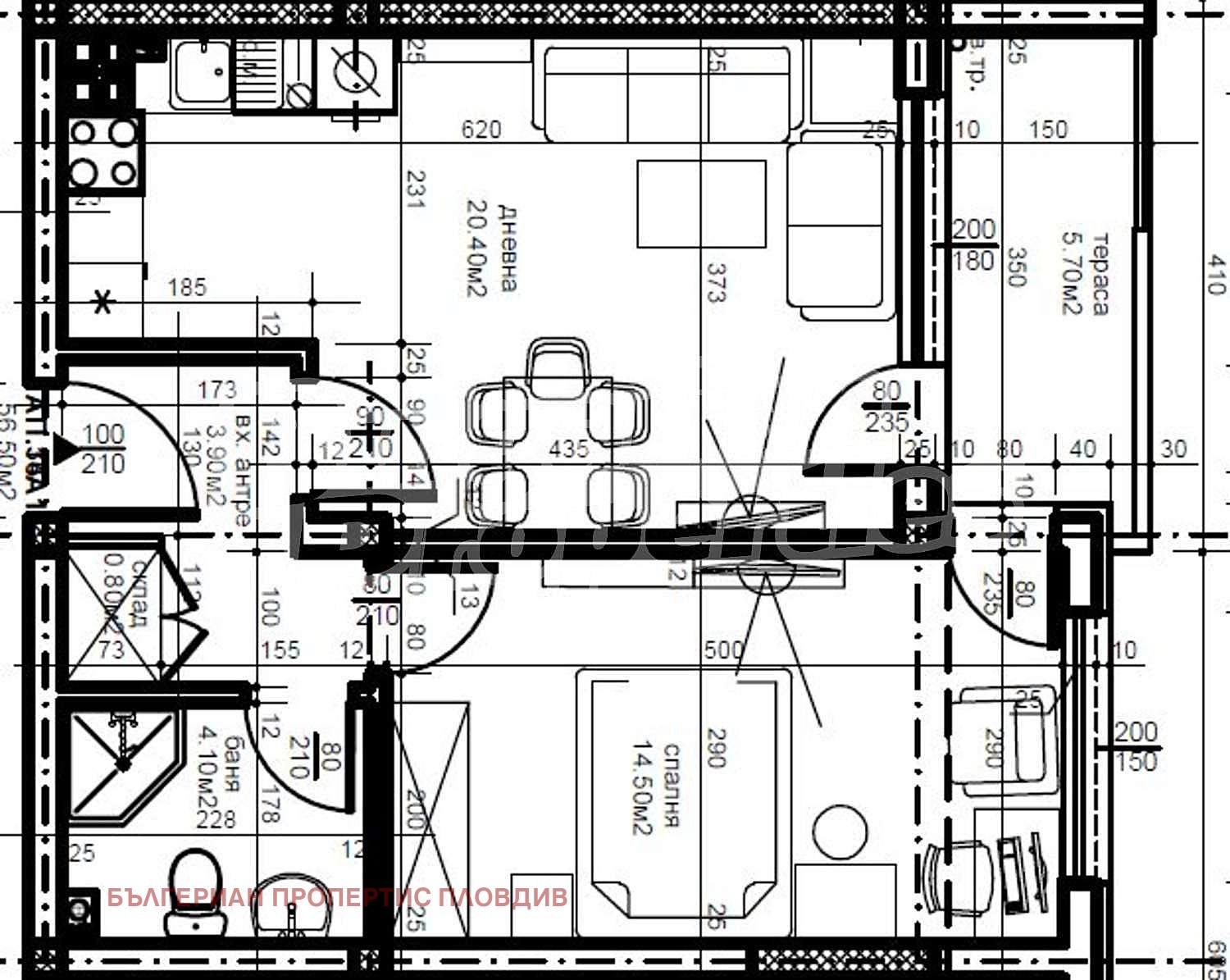
Апартаментът (обща площ 66.4 кв.м., чиста площ 56.5 кв.м.), западно изложение, се намира на 3/6 етаж и се състои от:
Антре
Хол с кухненски бокс
Спалня
Баня с тоалетна
Тераса с изход от двете стаи
Склад

Строителството на комплекса ще бъде изпълнено с висококачествени материали и технологии, отговарящи на най-съвременните изисквания:
монолитна стоманобетонна конструкция, външни стени керамични тухли WIENERBERGER
PVC дограма с троен стъклопакет 4 сезона
шпакловка и замазка
топлоизолация
ВиК до тапа
ел. инсталация до ключ
окабеляване за интернет
отопление на климатици
блиндирана входна врата
хидравлични асансьори
иновативна фасада със система за вентилация

Възможност за покупка на паркоместа и гаражи. Свободно паркиране около блока.

Оглед на имота
Можем да организираме оглед на имота спрямо нашия график и възможностите за достъп до него. Заявете вашето желание за оглед, като се свържете с отговорния за офертата брокер по имейл или телефон.

Резервация на имота
Имотът може да бъде резервиран и свален от продажба със заплащане на депозит, след което се прекратява провеждането на огледи с други купувачи и започва подготовка на документите за сключване на предварителен и окончателен договор. Свържете се с отговорния брокер за подробна информация относно процедурата на покупка и начините за плащане.

Жилищен кредит
Ние си партнираме с водещите български банки и можем да ви свържем с техните консултанти за информация и кандидатстване за кредит.
...
Особености
Тухла
Асансьор
Интернет връзка
За контакт:
0882817466

Този имот се предлага само на частни лица
Брокер:
Стефан Моллов
0882 817 466
Офис: Пловдив, ул. Петко Каравелов 26, ет. 4, офис 20
Още оферти от брокера: Продава | Дава под наем | Купува | Наема
Агенция:
БЪЛГЕРИАН ПРОПЕРТИС ПЛОВДИВ
032 58 69 56
БЪЛГЕРИАН ПРОПЕРТИС ПЛОВДИВ logo
Медал за прослужено време
В imot.bg от 2011 г.
plvbulprop.imot.bg
Адрес:
област Пловдив, гр. Пловдив, Делови Център Пловдив, ул. Хан Кубрат 1, eтаж 4, офис 408
http://www.bulgarianproperties.bg
ИЗПРАТИ ЗАПИТВАНЕ
ИЗПРАТИ ЗАПИТВАНЕТО

Продава 2-СТАЕН
град Пловдив, Южен
Обява: 1b174472763128899

89 900 €
175 829.12 лв.
(1 284 €, 2 511.29 лв./m2)

Цената е с включено ДДС
ЗАПАЗИ ОБЯВАТА

Местоположение: град Пловдив, Южен

Допълнителни данни за имотите в района и сравнение с други райони

Покажи

Период

* Средните цени са определени чрез медианна стойност